AquaLivio – L’habitat flottant 6 personnes

Accueil > Cottages > AquaLivio – L’habitat flottant 6 personnes

AquaLivio - L’habitat sur l'eau au format XL

Un cottage 6 couchages !

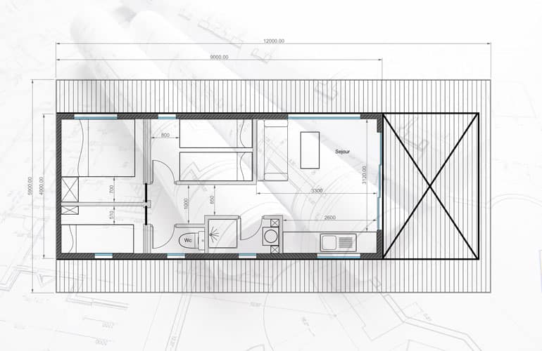
AquaLivio est le modèle d’habitat flottant familial par excellence. Avec pas moins de 6 couchages, cette version est destinée aux grandes familles qui souhaitent profiter pleinement du concept d’habitat flottant sans pour autant sacrifier le confort d’une vraie maison. Avec ses 12 m de long, cet habitat vous offre un agencement optimal pour des séjours en toute détente.

L’habitat flottant AquaLivio, comme tous nos modèles de cottages et cabanes flottantes pour le tourisme, est homologué (Division 240 / Norme Iso 12217 / etc.)

Un habitat spécialement conçu pour les grandes familles

AquaLivio est un hébergement flottant haut de gamme 6 couchages, idéal pour les familles nombreuses. Confortable, spacieux et agréable, AquaLivio vous permettra de  profiter pleinement de la vie sur l’eau… Pour des séjours insolites entre amis ou en famille !

Habitat flottant grande famille

Matériaux recyclables et écologiques

Le bois, un matériau chaud, résistant au milieu humide ! L’aluminium, un matériau idéal pour nos plateformes flottantes. Le Polyéthylène (Haute Densité) pour une utilisation et une résistance optimale des flotteurs.

Un confort maximal dans un habitat optimisé

Les designers ont particulièrement travaillé l’ergonomie et l’agencement de l’AquaLivio pour accueillir 6 personnes. Cet habitat flottant format XL vous offre 3 grandes chambres confortables, un salon et une cuisine ouverte sur une terrasse de 30 m² !

agencement aqualivio

Vous souhaitez des informations complémentaires ?

Bretagne Innovation
IDDIL, partenaire Aquashell
Label Hébergement Pêche
Owen Poho, designer pour Aquashell