AquaPesca – L’hébergement pêche par excellence

Accueil > Cottages > AquaPesca – L’hébergement pêche par excellence

AquaPesca - La cabane de pêche de référence

Spécialement conçu et adapté pour la pêche en eau douce

Véritable hébergement conçu pour les passionnés, l’AquaPesca se différencie de par ses caractéristiques adaptées à l’activité de la pêche en eau douce. AquaPesca annonce clairement ses intentions: vous permettre de profiter pleinement de l’eau qui vous entoure pour vous abandonner sans concession à votre passion : La pêche !

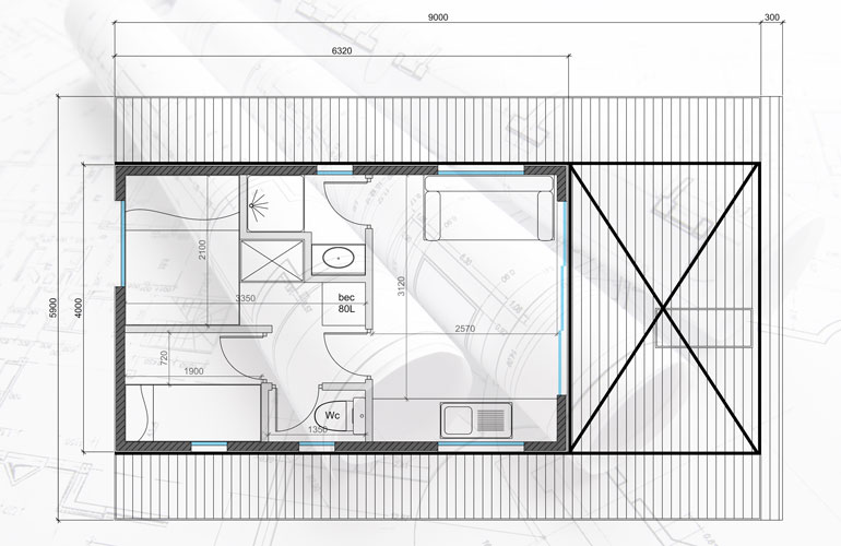
Développé en partenariat avec la Fédération Nationale Pêche, l’AquaPesca répond en tout point aux plus extravagantes demandes des pratiquants. Comme en témoigne-la présence d’un vivier dans la terrasse ! Outre l’orientation « pêche » de ce modèle, il reste avant tout un habitat flottant, comprenant un agencement intérieur pour 5 personnes avec salle d’eau (WC / Douche / etc.) une cuisine équipé et deux chambres.

AquaPesca, comme tous nos modèles de cottages flottants et cabanes sur l’eau pour le tourisme, est homologué (Division 240 / Norme Iso 12217 / etc.)

Découvrez une de nos installtions du modèle d’hébergement flottant Aquapesca en France :

Rangement pour les instruments de pêche

Aquashell s’entoure de designers et d’architectes pour vous offrir des habitations adéquates pour une utilisation familiale ! La sécurité est le maître-mot sur tous nos habitats. Protégés, les enfants pourront, sans risque, profiter aussi de la terrasse comme de l’intérieur !

rangement AquaPesca

Prise de courant et point d'eau extérieur

Plus qu’un détail ! Notre hébergement pêche est équipé d’une prise de courant et d’un point d’eau extérieur. Pouvoir installer un réfrigérateur pour les leurres vous permettra de les garder au frais près de vous, directement sur la terrasse.

électricité et eau sur l'hébergement pêche AquaPesca

Vivier intégré dans le plancher

Un vivier directement implanté dans le plancher de la terrasse de l’AquaPesca permet aux amateurs de pêche de pouvoir garder leurs prises vivantes! Facile et à portée de main, une élément bien pratique.

vivier pêche integré sur l'hébergement AquaPesca

Jupe et taquets pour l'amarrage

L’AquaPesca a la particularité d’être muni d’une jupe avancée afin de permettre une pratique facile de la pêche ! Pour ne pas être gêné par les gardes corps, la jupe de 40 cm vous permettra de pratiquer votre sport favori sans aucune contrainte.

taquet d'amarrage AquaPesca

Homologué 'Hébergement Pêche'

AquaShell s’est entouré de professionnels de la pêche pour concevoir cet habitat. AquaPesca a été conçu en partenariat avec la Fédération Pêche des Côtes d’Armor  afin de développer un modèle d’hébergement pêche labellisé.

label hébergement pêche

Vous souhaitez des informations complémentaires ?

Bretagne Innovation
IDDIL, partenaire Aquashell
Label Hébergement Pêche
Owen Poho, designer pour Aquashell